

Past karavotli yarim tirkamali
Past yuk ko'taruvchi yarim tirkamali og'ir yuk mashinalari, traktor yuk mashinalari, avtobuslar, og'ir yuk mashinalari va boshqalarni o'z ichiga olgan maxsus transport vositalarini tashish uchun maxsus ishlab chiqilgan va ishlab chiqarilgan; temir yo'l transporti vositalari, konchilik mashinalari, o'rmon xo'jaligi mashinalari, ekskavatorlar, buldozerlar, yuklagichlar, tosh yo'llovchilar, kranlar va boshqalarni o'z ichiga olgan qurilish mashinalari. Past yuk ko'taruvchi yarim tirkamali ...
Orqa toqqa chiqish narvoniga ega maxsus dizayn tufayli og'ir uskunalar, ayniqsa qurilish texnikasi orqa tomondan yuklanadi. Yuklarni osongina, xavfsiz va yuqori moslashuvchanlik bilan tashishni istagan har bir kishi uchun biz CS TRUCKS tomonidan ishlab chiqarilgan past o'rindiqli yarim tirkamalar ushbu afzalliklarni ko'plab konfiguratsiyalarda mijozlarning talablariga mos ravishda birlashtiramiz.
Modelga asoslangan: 2 o'qli past karavotli yarim tirkama, 3 o'qli past karavotli yarim tirkama, 4 o'qli past karavotli yarim tirkama, 5 o'qli past karavotli yarim tirkama va boshqalar
Imkoniyatga asoslangan: 20 tonna, 30 tonna, 40 tonna, 50 tonna, 60 tonna, 80 tonna, 120 tonna, 150 tonna.
| Model | Aks tizimi | Yuklash hajmi | Umumiy o'lcham | Ilova |
| CS9280TD | 2 | 20 tonna | 8200x2500x3000 mm | Maxsus yuk mashinalari, avtobuslar |
| CS9292TD | 2 | 25 tonna | 10000x2500x3150 mm | Og'ir qurilish uskunalari |
| CS9330TD | 3 | 30 tonna | 10000x2500x3150 mm | Og'ir texnika, temir yo'l transporti vositalari |
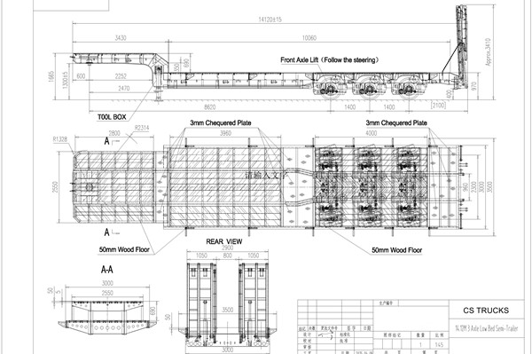
| CS9402TD | 3 | 50 tonna | 11500x2500x3500 mm | Ekskavator, Buldozer |
| CS9405TD | 3 | 60 tonna | 13500x2500x3400 mm | Elektr stansiyasi uskunalari |
| CS9408TD | 4 | 80 tonna | 13000x2500x3500 mm | Barcha katta obyektlar |
| CS9450TD | 4 | 100 tonna | 13750x2500x3600 mm | Juda uzun va juda katta uskunalar |
| CS9458TD | 5 | 150 tonna | 13750x2500x3800 mm | Og'ir uskunalar va mashinalar |
Shaxsiylashtirilgan chizmalar, ehtiyojlaringizga moslashtirilgan
CS TRUCKS mijozlarga eng yaxshi yassi yarim tirkamali yechimlarni taqdim etishga sodiqdir. Bizda nafaqat ishlab chiqarish jarayonida professional texnik yechimlarni taqdim etadigan, balki mijozlarga sotishdan oldingi konsalting va sotishdan keyingi texnik xizmatlarni ham taqdim etadigan professional texnik jamoa mavjud.
Zamonaviy ishlab chiqarish liniyalari, aqlli ishlab chiqarish uskunalari
CS TRUCKS hozirda yuqori aniqlikdagi payvandlash robotlari, CNC kesish uskunalari, bükme va shakllantirish uskunalari, transport vositalarining ishlashini sinovdan o'tkazish liniyalari va boshqa asosiy uskunalarni o'z ichiga olgan 300 dan ortiq ilg'or maxsus transport vositalarini ishlab chiqarish va sinovdan o'tkazish uskunalariga ega. Asosiy komponentlarni qayta ishlashdan tortib, transport vositalarini sinovdan o'tkazishgacha, ishlab chiqarish aniqligi va mahsulot sifatini ta'minlash uchun butun jarayon davomida professional uskunalar qo'llaniladi.
Pastki yarim tirkamali partiya yetkazib berish displeyi
CS TRUCKS ning barcha past karavotli yarim tirkamalari yuqori mustahkamlikdagi po'latdan yasalgan bo'lib, juda kuchli yuk ko'tarish qobiliyatiga va og'ir yuk tashish, qurilish texnikasini tashish va logistika xizmatlari kabi ko'p ssenariyli ehtiyojlarga moslashuvchanlikka ega. Ilg'or ishlab chiqarish va sinov uskunalari, shuningdek, professional ishlab chiqarish liniyalariga tayanib, biz yillik 20 000 dona barqaror ishlab chiqarish quvvatiga erishdik. Mahsulotlarimiz Janubiy Osiyo, Afrika va Janubiy Afrika kabi 50 dan ortiq mamlakat va mintaqalarga eksport qilinadi va mijozlarning keng e'tirofiga sazovor bo'ldi.
Xabar QOLDIRISH
Wechat/WhatsApp’ga skanerlang :